
neo_hall
adaptive reuse project
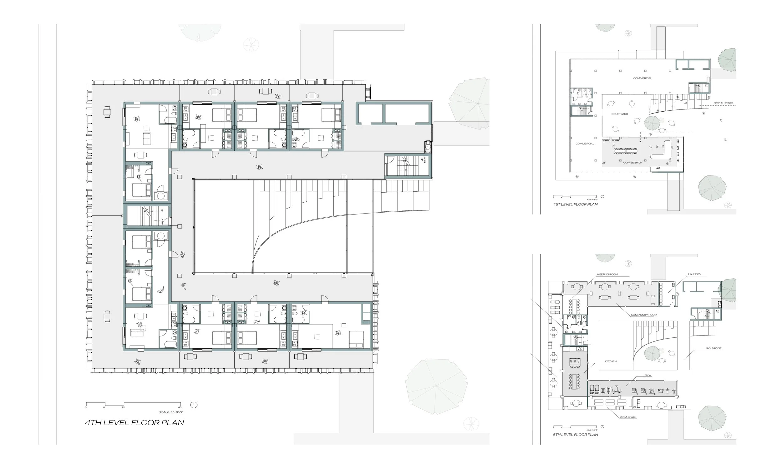
adaptive reuse: city hall
fort lauderdale, fl
The project repurposes a flood-affected city hall into affordable housing, preserving its heritage while adapting it for modern needs. It prioritizes sustainability through energy efficiency, water conservation, and green spaces. The design ensures inclusivity and accessibility for diverse demographics. Community engagement will guide decision-making, aligning the project with local needs. To address flooding risks, resilient design will include elevated infrastructure, flood-resistant materials, and emergency preparedness measures.


existing
masterplan